Live Roller Conveyors by Webb-Stiles
What is a Live Roller Conveyor?
Live roller conveyors use motor-driven rollers to move products efficiently across a conveyor line. Unlike gravity conveyors, each roller in a live system is actively driven—typically by a chain, belt, or lineshaft. As a result, this setup allows for precise control, smooth movement, and consistent performance across a wide range of applications.
These systems play a key role in manufacturing, warehousing, and distribution environments where unit loads like pallets, totes, or cartons need to move reliably. In these environments, each roller is powered, and live roller conveyors are well-suited for handling both light and heavy items. Additionally, they support accumulation zones, transfers, and automated system integration.
To meet different layout and control requirements, Webb-Stiles provides multiple types of live roller systems. Whether you’re looking for rugged chain-driven units for heavy-duty service or smoother-running, belt-driven or extended-range designs, each solution is custom-engineered to match your facility’s flow and performance goals.
History of the Live Roller Conveyor
Live roller conveyors emerged as an evolution of basic gravity rollers, addressing the need for powered movement of goods in manufacturing and distribution. Early roller systems relied on manual pushing or gravity-fed slopes, which limited their efficiency and control. Over time, as factories sought greater automation in the early 20th century, powered rollers became an essential solution for moving packages, pallets, and components through production lines.
The initial versions of live roller conveyors used simple chain or belt drives to link rollers together, providing positive traction and continuous movement. Since then, variations like Chain Driven Live Roller (CDLR), Belt Driven Live Roller (BDLR), and Lineshaft Live Roller (LSLR) have been developed to accommodate different load types, environments, and budget considerations.
Live roller conveyors became a staple in material handling due to their versatility. Not only do they allow for accumulation, controlled flow, and integration with diverters and sortation systems, but they also adapt well to warehouses, assembly lines, and packaging facilities. Today, advancements in drive systems, materials, and automation continue to expand the capabilities of live roller conveyors.
Types of Live Roller Conveyors
Chain Driven Live Roller (CDLR) Conveyors
Chain driven live roller conveyors are designed for heavy-duty unit loads in demanding industrial environments. Each roller is powered by a chain-driven system, providing positive traction and synchronized movement. Therefore, they’re ideal for continuous, high-force applications.
Thanks to their rugged construction and dependable performance, CDLR systems are commonly used in pallet handling, automotive lines, foundries, and other demanding operations. Additionally, they are available in a wide range of roller sizes and can also be paired with custom auxiliary equipment to increase versatility.
Best for: Heavy loads, industrial environments, and continuous movement.
Extended Range Live Roller (ERLR) Conveyors
Extended range live roller conveyors use sensor-controlled zones to enable zero-pressure accumulation. Therefore, each zone can hold a product without contact, which ensures smoother high-speed throughput and protects the load.
ERLR systems are a great fit for fast-paced lines, such as those in distribution centers or tire plants, where product protection and flow control are top priorities. Because of this, their modular design and high configurability make them ideal for demanding operations.
Best for: Large loads, high-speed lines, and zero-pressure accumulation.
Belt Driven Live Roller (BDLR) Conveyors
Belt driven live roller conveyors work best in clean environments where smooth, quiet operation matters. A continuous belt runs beneath the rollers to apply consistent pressure and move the load forward. As a result, this design supports gentle handling and is also easy to maintain.
You’ll often find BDLR systems in packaging lines, distribution centers, and light manufacturing facilities. Additionally, they can be customized to include accumulation zones or integrated with transfers and curves to support flexible layouts.
Best for: Clean environments, gentle handling, and quiet operation.
Lineshaft Live Roller (LSLR) Conveyors
Lineshaft live roller conveyors use a motor-driven shaft with pulleys and urethane belts to power multiple rollers along the conveyor’s length. As a result, this setup is low-noise, energy-efficient, and simple to maintain.
For this reason, these conveyors are well-suited for lightweight cartons or totes in clean, controlled environments. LSLR systems handle accumulation, curves, and transfers with ease, which makes them ideal for order fulfillment or assembly lines with moderate loads.
Best for: Quiet operation, light loads, and flexible routing.
Timing Belt Live Roller (TBLR)
Timing belt live roller conveyors use a toothed belt drive to power rollers with synchronized precision. This design creates positive movement without slippage, making it ideal for products that require accurate spacing and smooth acceleration.
TBLR systems are especially useful for fragile or high-value goods. In particular, their low-noise operation, precise control, and low-maintenance design make them a strong choice for electronics assembly, appliance handling, and other environments where precision matters.
Best for: Precise movement, fragile products, and controlled acceleration.
Applications & Uses
These conveyor types are designed to meet a range of material handling needs across different industries and product types:
Chain Driven Live Roller (CDLR)
-
Ideal for heavy-duty pallet handling
-
Suitable for harsh environments with rugged components
-
Commonly used in tire lines and automotive production
-
Handles long or high-speed conveyor runs
-
Delivers consistent chain-driven movement
-
Supports transfer lines with stop/start control
Belt Driven Live Roller (BDLR)
-
Ideal for clean or quiet industrial settings
-
Suitable for medium-weight loads that require smoother motion
-
Accumulation zones can be added using pop-up logic
-
Works well in layouts without sharp curves
-
Provides moderate-speed product handling
Extended Range Live Roller (ERLR)
-
Fast-paced distribution or packaging lines
-
High-speed flow with precise zone control
-
Large loads needing zero-pressure accumulation
-
High-throughput sorting or inspection systems
-
Easily reconfigurable for complex line changes
Timing Belt Live Roller (TBLR)
-
Powers high-speed product movement
-
Operates in low-noise environments (compared to chain)
-
Minimizes maintenance requirements
-
Allows contact accumulation where spacing isn’t critical
-
Maintains consistent movement without belt stretch
Lineshaft Live Roller (LSLR)
-
Best for lightweight packages (<100 lbs)
-
Enables low-cost, low-noise accumulation
-
Supports flexible layouts with curves and zones
-
Works well for order picking or small-item sorting
-
Manages mixed contact and non-contact accumulation
Choosing the Right Conveyor Matters
Each conveyor type is engineered to meet specific load requirements, operating speeds, and facility conditions. By understanding these differences, you can select a system that improves efficiency, reduces downtime, and supports your production goals.
Key Features
Designed for durability and flexibility, live roller conveyors offer the following key features:
General System Capabilities
-
Multiple drive types: chain, belt, timing belt, and lineshaft
-
Customizable roller spacing and frame dimensions
-
Supports both contact and non-contact accumulation methods
-
Modular sections allow for curves, diverters, lifts, and zoning
-
Built for load-specific needs: from lightweight to heavy-duty products
Specialized Options
-
PLC-based zone control (replaces legacy ALPHA® and Bar-Logic systems)
-
Grease-packed or sealed bearings based on environment
-
Slip tube or pop-up zone accumulation options available
-
Fixed or adjustable take-up options
-
Available in both standard designs and fully custom builds
How Live Roller Systems are Engineered
Layout & Flow Design
Every live roller conveyor system begins with careful layout planning. To begin with, Webb-Stiles engineers design each system around your building footprint and the specific movement of your product. Whether you’re modifying an existing facility or building from scratch, layouts can include straight sections, curves, merges, elevation changes, and directional flow to align with your floorplan.
In addition, layout decisions factor in accumulation zones, discharge points, and upstream or downstream equipment integration. Turntables, chain transfers, and pallet dispensers can be added to redirect loads or create buffer zones. Engineers design each layout to support your current flow and accommodate future expansions.
Drive Method Selection
Drive system selection plays a critical role in performance, durability, and flow control. Webb-Stiles offers several drive types for live roller conveyors, including chain-driven (CDLR), belt-driven (BDLR), timing belt (TBLR), and lineshaft systems (LSLR).
Each option offers unique advantages. For example, Chain-driven systems are best for heavy-duty applications and high-force movement. In contrast, Belt-driven systems are smoother and quieter, often used where reduced noise is a priority. Timing belt drives deliver higher speeds and quieter operation with minimal maintenance. Meanwhile, lineshaft systems are ideal for light-duty work, especially when curves or zoning are required.
All drive types are available in modular configurations to support zone control, accumulation logic, or integration with other equipment.
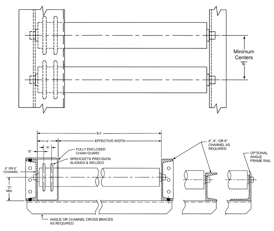
Roller Type & Sizing
Roller selection is key to load capacity and consistent motion. Therefore, Webb-Stiles offers multiple roller diameters (1.9″, 2″, 2.5″, and 3.5″) in order to match your product’s size, weight, and spacing needs.
Use smaller rollers for light items or when your layout calls for tighter spacing. In contrast, larger rollers offer added strength, especially in CDLR systems, making them better suited for heavy-duty use. You can choose roller centers and shaft types based on your layout and expected wear, helping ensure durability and optimal weight distribution.
Whether you’re moving small cartons or heavy pallets, each configuration is purpose-built for long-lasting performance.
Accumulation Strategy
Every Webb-Stiles live roller system can be configured for accumulation. This feature helps control product flow, reduce pressure between items, and stage materials for downstream operations.
-
CDLR and TBLR systems use slip tubes for contact accumulation. Products rest against the item ahead of them without spacing, creating a simple and reliable buffer.
-
BDLR and ERLR systems use integrated pop-up zones for non-contact accumulation. This setup allows spacing between loads, reducing product damage and improving control.
-
LSLR systems include built-in accumulation zones by default, supporting both contact and non-contact accumulation without additional components.
Webb-Stiles now uses modern PLC-based logic to deliver faster, smarter accumulation control. As a result, Webb-Stiles no longer relies on outdated systems like ALPHA® or Bar-Logic.
Support Structure & Framing
Support structure plays a critical role in every live roller conveyor system. Because of this, Webb-Stiles offers a full range of supports, bracing, and elevation options tailored to your floor layout and load requirements. These systems can be floor-mounted, overhead, or span multiple elevations within a single run.
Choose framing options based on load and environment. Adjustable take-ups are used where chain tension and belt alignment need long-term management. Support legs can be fixed-height, height-adjustable, or mounted on bolted leveling pads—depending on the application.
Engineers size each structural element for your system’s load and designed with accessibility in mind—for both everyday maintenance and long-term reliability.
System Integration & Customization
Live roller conveyors are typically just one piece of a larger material handling system. Webb-Stiles engineers each conveyor to integrate seamlessly with upstream and downstream equipment—whether that includes palletizers, stretch wrappers, robotic cells, or other conveyor types like belt or chain systems.
To support this integration, custom controls, sensors, and PLC programming are used to manage zone logic, synchronize product flow, and interface with plant-wide systems. Additionally, engineers can add accessories like transfer devices, diverters, and pop-up stops to control product routing and manage flow paths.
Whether your setup involves a few powered zones or full-facility integration, ultimately every live roller conveyor is engineered to meet your performance goals and system requirements.
Low-noise, belt-driven conveyors for clean, quiet operations.
Zero-pressure accumulation for high-speed, high-volume applications.
Rugged, chain-driven conveyors for heavy-duty or continuous use.
Reference dimensions and chain specs for CDLR, BDLR, and more.
Downloads & Literature
Get in-depth specs, maintenance guides, and system planning resources
Need help selecting the right conveyor system?
Contact our team to discuss your material handling goals.
